Low Emission Zone in Malaga is outer area marked in yellow |
|
Zona de Baja Emisiones (ZBE) - Low Emission Zone in Malaga
by Chris Chaplow and Fiona Flores Watson
Malaga Low Emission Zone with fines from 30 November 2025.
Malaga's ZBE (Low Emission Zone) was introduced on Saturday 30th November 2024. During the first year vehicles entering the Zone without the correct exemption will NOT be fined but instead sent an advisory letter. From 30th November 2025 Fines will be issued.
What is a ZBE?
In December 2022, a new Spanish law came into force that requires towns and cities of a certain population to create low emission zones (Zonas de Bajas Emisiones, or ZBE) in their centres. This initiative is intended to help improve the air quality in towns and cities, and the health of their inhabitants.
Following the European Directive 2058/50/EC of the European Parliament on air quality, the Spanish central government passed the Royal Decree 1052/2022 Cambio Climático y Transición Energética (Climate Change and Energy Transition) in December 2022. All towns in Spain with a population of more than 50,000 were supposed to introduce low emission zones before 2023.
Certain vehicles, depending on their fuel type and year of first registration, have restricted access to town and city centres at certain times and on certain days (usually weekdays during the daytime); some older vehicles are, or will be in the near future, completely banned.
The key information you need to know is a) where the restricted access area is located, b) the restricted hours/days, and c) which emissions label your vehicle has. Then you will know which areas your vehicle can (and cannot) access, and when.
Hire a car at Malaga airport at the lowest rates with MalagaCar.com. Fast pick-up service included. We don’t charge refuelling service fees!
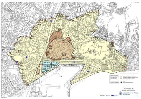
Málaga's ZBE (Low Emission Zone)
Malaga is one of the many towns across Andalucia that is introducing ZBEs (Low Emission Zone). The Malaga Town Hall approved a draft municipal ordinance in December 2023 hoping to introduce the zone before Easter 2024. Actually the definitive 'Municipal Ordinance on Sustainable Mobility' was introduced Saturday 30th November 2024. During the first year vehicles entering the Zone without the correct exemption will NOT be fined but instead sent an advisory letter. From 30th November 2025 Fines will be issued.
Cars and motorbikes registered in Malaga city will be able to access the ZBE. Those vehicles registered in another town and without a sticker will not be able to enter from the end of 2025. Those vehicles registered in another town and without a C sticker will not be able to enter from the 30 November 2025.
Vehicles registered in Malaga, loading and unloading delivery vehicles, all vehicles accessing public car parks, and all those going to hotels, hospitals, owners and tenants of private parking spaces, Blue Badge holders were exempt in initial July 2024 drafts of the restrictions, but not mentioned in the final Town Hall comunications or website. There is to be online pre-registraton system for such purposes.
In the case of vans, for the first four years, those with ZERO, ECO, C and B labels and those without labels will be allowed to circulate. From the fifth year onwards, those with the ZERO, ECO and C labels and those with the B label or without labels, but who are domiciled in Malaga, will have access.
Vehicle Emission stickers
Although no law requires the sticker to be placed on the car windscreen, the Dirección General de Tráfico (DGT) recommends that it be placed on the lower right-hand side of the front windscreen. It will be required to be displayed by local town halls if you want to drive into their Low Emission Zones.
The different categories of labels, according to EU regulations, are:
- 0/Zero (blue) – electric cars, extended range electric vehicles, plug-in hybrids (PHEV) with a range of more than 40 km, and fuel cell vehicles (battery-powered BEV and REEV class vehicles).
- Eco (blue and green) – plug-in and non-plug-in (HEV) hybrid cars, 8-seater and goods delivery vans with maximum range of 40km, and natural gas vehicles (CNG, LNG and LPG class vehicles).
- C (green) – petrol cars registered since 2006, diesel cars and light vans registered since 2014, and petrol or diesel 8-seaters and goods delivery vans registered since September 2015.
- B (yellow) – petrol cars which meet Euro 3 standards and diesel cars which meet Euro 4 and 5 standards. Petrol cars and light vans registered from January 2001 up to and including 2005; diesel cars and light vans registered from 2006 to August 2015; and petrol and diesel 8-seaters and goods delivery vans registered since 2005.
No Label / Label A: Vehicles that are not able to obtain any label (also known as Label A) are petrol passenger cars and vans registered before 2000, and diesel passenger cars and vans registered before 2006.
Approximately 30% of Spanish cars (10 million vehicles) are without an environmental sticker.
For more information see the DGT website. Clasificación de la DGT de Vehículos por Emisiones | ITV
If you do not have a sticker for your vehicle, you can request one from the DGT. Visit https://www.pegatinas-dgt.com/ and enter any car’s registration to see its emission class. To obtain a sticker for the nominal postage cost, upload a scan of your ID or driving licence and the vehicle’s green permiso de circulación document.
Other towns and cities in Andalucia
In total 149 towns and cities in Spain, including 29 in Andalucia, are required to create a Low Emission Zone. This is an update on the ZBE status of the towns in Andalucia with population over 50.000 that were required to introduce ZBE zones by 1 Jan 2024. On thing is clear, almost all towns have mis-judged implementation timescales. In the list below *** indicates towns where ZBE is active and fines are being applied.
Málaga Province
Málaga city - Introduced 30th November 2024 and fines applied since 30 November 2025.
Torremolinos - Introduced 1st January 2024 and fines applied since January 2025.
Marbella - Signage and cameras active since Dec 2023 for testing period. No fines yet.
Estepona - Published details in Oct 2023 but signage and cameras have not been introduced.
Vélez-Malaga - Plans by previous administration are being reviewed. Likely to be two areas: historic centre of Velez-Malaga and centre of Torre del Mar.
Rincon de la Victoria - Town council approved a study in July 2024 and entered public consultation phase. Will be an area of 9 hectares covering Plaza de la Constitución, between Corta, Virgen de la Candelaria and Avenida del Mediterráneo.
Fuengirola - The ZBE has already been approved for 100,000 square metres distributed over 18 blocks of the town centre. As the ZBE area is already semi-pedestrianised and therefore restricted for vehicles it will not be formally introduced.
Benalmadena - Town hall plans to define area probably with help or eternal consultant. No published plans.
Mijas - Following the change of local government in November 2024 Mijas effectively started again to define the ZBE areas and their specification.
Seville Province
***Sevilla city - active ZBE introduced in Isla Cartuja 1st January 2023, fully implemented with fines on 01-July-2024. Plans for city centre ZBE still under discussion.
Alcalá de Guadaira Initial proposals approved by town council in July 2024. Not likely to come into force until 2026.
Dos Hermanas
Utrera
Hire a car at Malaga airport at the lowest rates with MalagaCar.com. Fast pick-up service included. We don’t charge refuelling service fees!
Cadiz Province
Algeciras - Initial proposals opened for public comment on 20th April 2023.
Cádiz city - Two low-emission zones will be in operation in Cadiz city in the 'coming months' (Sept 2024). One is the whole of the old quarter inside but not including the ring road, and the other is the section of the promenade which has already been semi-pedestrianised. In the old quarter, in addition to the ring road, the following roads will be excluded from the ZBE: República Argentina, Plaza de Filipina, Honduras, Concepción Arenal and Plaza de la Hispanidad. Access will be permitted for authorised vehicles including residents of the old town, Hotel service companies, medical centres and underground car parks. Authorisations are managed by EMASA, the public company. Fines will not come into force until six months after the ZBEs are put into use. .
Chiclana de la Frontera - Town Hall confirmed on 4th Nov 2022 the consession company to manage the ZBE project. 23 Apr 2023 Next Gen EU grant confirmed.
El Puerto de Santa María - Ecologistas en Acción, the enviromental group publically complained on on 30th Jan 2023 that El Puerto de Santa Maria had not made any ZBE plans public, nor answered their written requests.
Jerez de la Frontera - No ZBE plans published, 45 cameras being installed as a phase one.
La Línea de la Concepción - ZBE II Parque Princesa Sofía is operative; no motor vehicles permitted. ZBE I is avenida de España y las calles, Salvador Dalí, López de Ayala, Granada, Clavel y plaza de la Constitución. To be introduced in 2025 restricting A sticker vehicles, in 2026 restricting B sticker vehicles and 2027 restricting C sticker vehicles.
San Fernando - Proposed area between Observatorio de Marina and Hornos Púnicos roundabout.
Sanlúcar de Barrameda
Granada Province
Granada city Granada Zone 1 ZBE came into force 1st October 2025 with fines being issued for vehicles entering Zone 1 without an eco-label (also called label A).
Motril Proposed ZBE plans went to public comment in March 2024.
Almeria Province
Almería city - ZBE area has been defined, however since tested air quality is good, there are no current plans to impose restrictions.
El Ejido - Zone plans published in 2022 and little progress since. Vox councilors have expressed opposition.
Roquetas del Mar- Began process to design ZBE area in 2023 and requested public comment in May 2024.
Cordoba Province
***Córdoba city - active ZBE introduced 23rd Feb 2023.
Huelva Province
Huelva - Huelva Town Hall reviewing plans made by previous administration before May 2023.
Jaén Province
Jaén city - ZBE public comment document published November 2023.
Linares - Project advanceed, cameras and signage underway in historic centre. Ordinances to be published.
The access and restrictions of each ZBE depend on each municipality, but as a general rule C and B label cars can access these zones as long as they park in a public or hotel or private car park. There are no restrictions for ECO and 0 cars.
Updated 27-Oct-2025
